proyecto verónica
revaloriza
Proyecto Verónica
Esta es la historia de un piso muy pequeño que había sido okupado y desmantelado. El estado era tan deplorable que a nadie se le ocurriría comprarlo para vivir allí. Fontanería, electricidad, suelos, puertas, ventanas... todo para tirar. ¿Una pena o una oportunidad?
Nuestros objetivos principales son:
Ganar funcionalidad
Garantizar la habitabilidad
Reformar inteligentemente
qué es lo que hicimos
Reformar el piso entero para venderlo mejor.
Y lo convertimos en un apartamento adorable, coqueto y a estrenar en el centro de Getafe. Una reforma pensada para un comprador que entre a vivir o lo ponga en alquiler.
Ventanas, puertas, suelos, fontanería y electricidad.
Iluminación consciente y actual.
Integrar la cocina en el salón.
Decoración y amueblado.
¿cuánto pierdes por no modernizarla?
¿Quieres ver el antes y después?
Una imagen dice más que mil palabras. No hay color entre el estado de este piso antes, y el que tenía a la hora de ponerlo en venta. Y tampoco entre los cientes potenciales que se interesarían antes, con los de después.
Duración de la reforma: 2 meses
Inversión: 30.000 €
Rentabilidad: 15 - 20 %
No solo mejoras físicas sino también energéticas y estructurales
Escala de calificación energética
E
Menos eficiente
189
Consumo de energía Kw h / m2 año
36
Emisiones Kg CO2 / m2 año
Escala de calificación energética
E / D
Más eficiente
161
Consumo de energía Kw h / m2 año
30
Emisiones Kg CO2 / m2 año
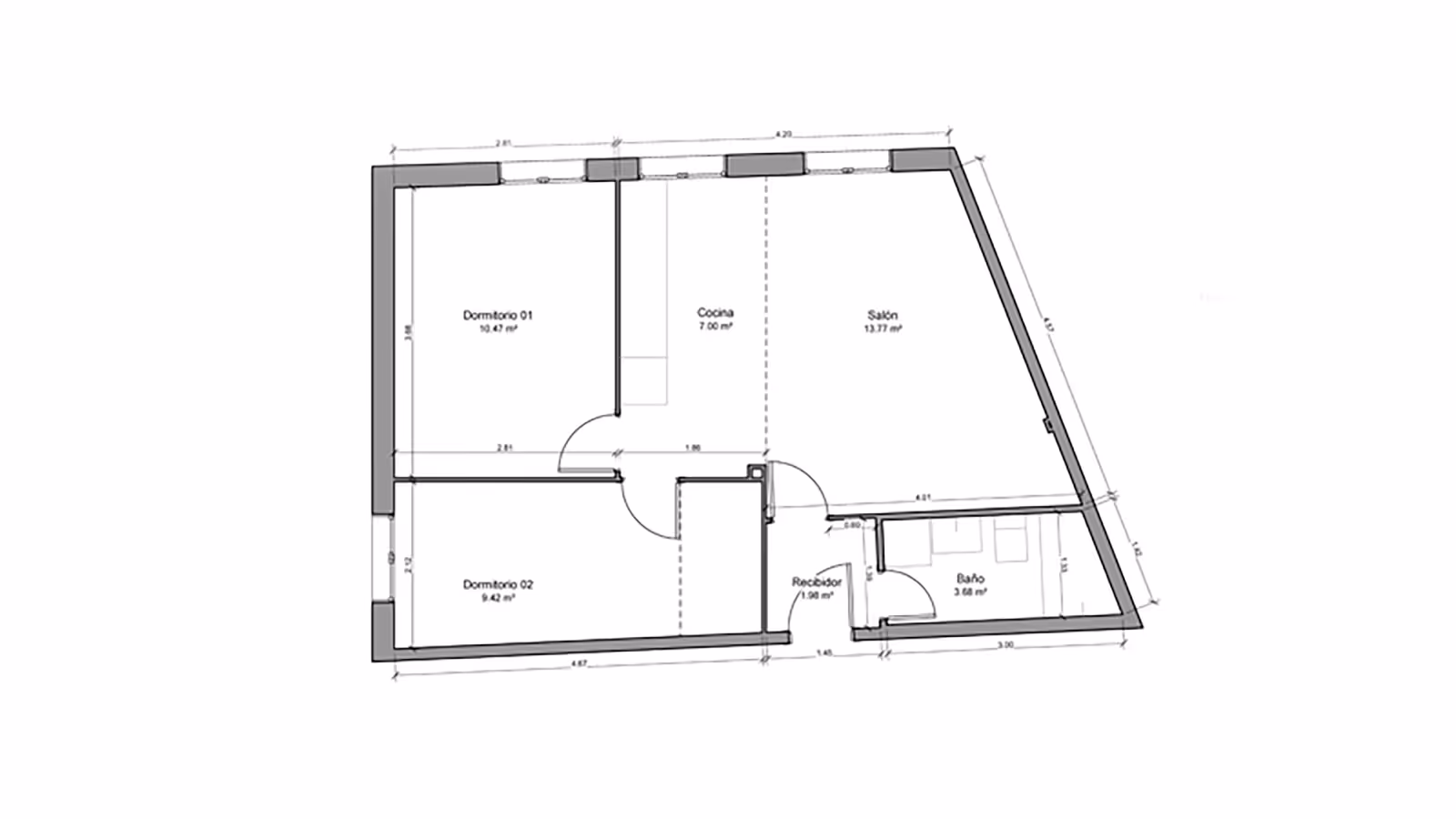
Cambios en el plano técnico
te mostramos cómo quedará tu vivienda
Una imagen, mejor que mil palabras.
Informes, planos, datos... pero una imagen de cómo quedará tu vivienda revalorizada, siempre es mejor. Con los Renders del proyecto podrás ver un resultado final muy aproximado.
Verás la nueva distribución
Verás la nueva decoración
revaloriza: la forma de aumentar el valor de tu vivienda
Viviendas que hoy valen mucho más
Con el resportaje fotográfico final, el Proyecto Verónica está listo para publicarse a la venta en los principales portales inmobiliarios. Haz clic en las galerías para ver en qué hemos convertido esta vivienda en Getafe.
¿te gusta lo que ves?
Reformar antes de vender Revaloriza tu vivienda.
Y nosotros sabemos cómo hacerlo. ¿Quieres sacarle todo el partido a esa vivienda que estás deseando vender? No pierdas dinero. Si estás buscando una Agencia Inmobiliaria en Getafe que te ofrezca un servicio profesional, de máxima calidad y con un trato personalizado y familiar, has llegado al sitio correcto.















